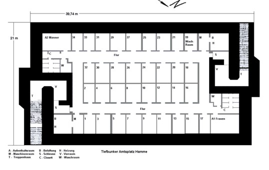
Die Bochumer Tiefbunker weisen auf den ersten Blick viele Ähnlichkeiten auf. So wurden z.B. die Zugänge an den Außenseiten ankonstruiert, die Lage der Funktionsräume ist einheitlich und der Aufbau ist, abgesehen von den verschiedenen Größen, ebenso vergleichbar. Alle Tiefbunker waren an das öffentliche Kanalnetz angeschlossen, so daß die Wasser - Ver - und Entsorgung früher keinerlei Probleme bereitete.
Hier zum Vergleich - Grundrisse Bochumer Tiefbunker




Tiefbunker Bochum